| ¸ò¡¡ÄÌ |
Ä¡¡ÎÁ¡Ê¶¦±×Èñ¡Ë |
ÄÚñ²Á |
Êݾڶâ |
Îé¶â |
»ÈÍÑÉôʬÌÌÀÑ¡ÊÄÚ¿ô¡Ë |
Âçºå»Ô±ÄÃϲ¼Å´Ã«Ä®Àþ
ëĮ»ÍÃúÌÜ ±Ø
ÅÌÊâ ʬ |
93,390±ß
¡Ê42,450±ß¡Ë |
5,512±ß ¡Ê2,505±ß¡Ë |
10¥ö·î |
280,170±ß |
56 Ö
¡Ê16.94ÄÚ¡Ë |
| ³°´Ñ²èÁü |
´Ö¼è²èÁü |
¤½¤Î¾²èÁü |
 |
 |
|
|
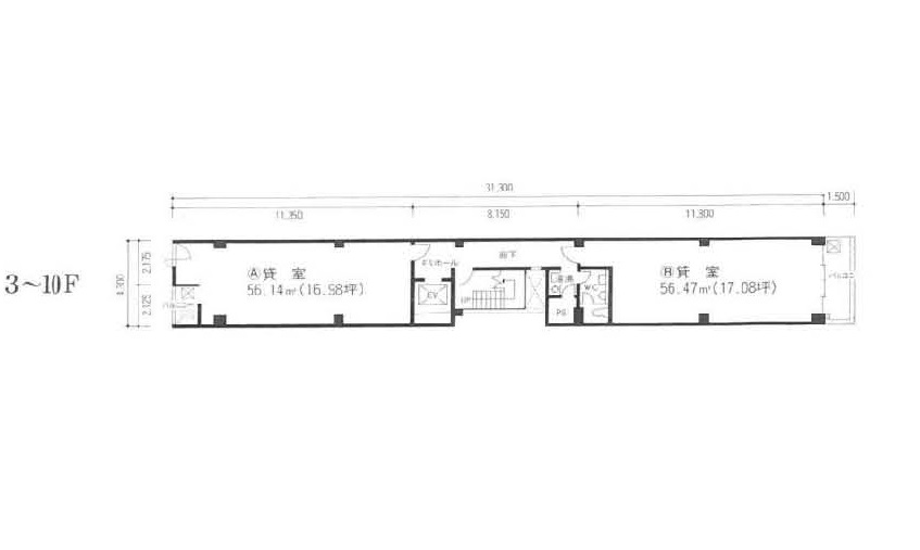
¼çÍ׺θ÷ÌÌ¡§
|
ÀìÍÌÌÀÑ¡§
56 Ö |
|
| ½êºßÃÏ |
ÂçºåÉÜÂçºå»ÔÃæ±û¶èÆâËÜÄ®£±-£±-£¶ |
| ʪ·ï̾¾Î |
ÆâËÜÄ®B&M¥Ó¥ë¡Ê-0301¡Ë |
·úʪ¹½Â¤ |
£Á£Ì£Ã¤ |
| ÀìÍÌÌÀÑ |
¡Ê·ÀÌó¡Ë56 Ö
|
ÉßÃÏÌÌÀÑ |
- Ö |
| Ãó¼Ö¾ì¡ÊÊݾڶâ¡Ë |
Ãó¼Ö¾ì¡§
-
¥Ð¥¤¥¯Ã־졧
-
¼«Å¾¼ÖÃ־졧
- |
| Êݾڲñ¼Ò |
Í×²ÃÆþ |
| ½êºß³¬ / ³¬·ú |
3 ³¬
/
10 ³¬·ú¡¡Ãϲ¼¡§
- |
ÃÛǯ·î |
1993 ǯ
6 ·î |
| ¼çÍ׺θ÷ÌÌ |
|
¸½¶· / Æþµï»þ´ü |
¶õ²È / |
| ÀÜÆ»¾õ¶· |
°ìÊý |
ÀÜÆ»¼ïÎà |
¸øÆ»¡¡°ÌÃÖ»ØÄê¡§- |
| ¸¢Íø¶â |
|
¤½¤Î¾ɬÍ×·ÐÈñ |
|
| ÍÑÅÓÃϰè |
- |
¼ÚÃϸ¢¼ïÎà |
ÉáÄÌÃϾå |
| ·ÀÌó´ü´Ö |
-2ǯ¡¡ |
´ÉÍý¡Ê´ÉÍý²ñ¼Ò¡Ë |
ÉÔÌÀ |
| ¼è°ú·ÁÂÖ |
Ãç²ð |
¾ò ·ï |
|
| ʪ·ïÅÐÏ¿Æü |
2022ǯ01·î23Æü |
¾ðÊó͸ú´ü¸Â |
2022ǯ02·î06Æü |
¢¨Ëü°ìÀ®ÌóºÑÅù¤Î¾ì¹ç¤Ï¤´Î»¾µ²¼¤µ¤¤¡£
¤³¤Îʪ·ï¤Ë¤Ä¤¤¤Æ¤Î¤ªÌ䤤¹ç¤ï¤»Àè
³ô¼°²ñ¼Ò¥¹¥¿¥ó¥À¡¼¥É¥Ñ¡¼¥È¥Ê¡¼¥º¡¡ÂçºåÉÜÃλö¡Ê2¡ËÂè55324¹æ¡¡
Âçºå»ÔÅì½»µÈ¶è¹ºÁ´1-16-18-2F¡¡
TEL¡§06-6777-7021¡¡FAX¡§06-6777-7022
±Ä¶È»þ´Ö¡§9»þ¡Á19»þ¡¡HP:http://standard-navi.com/


ÍøÍѵ¬Ìó
Âè1¾ò¡ÊÁí§¡Ë
ËÜÍøÍѵ¬Ìó¤Ï¡ØSTANDARD NAVI¡Ù¡Ê°Ê²¼¡¢¡ÖÅö¥µ¥¤¥È¡×¤È¤¤¤¦¡Ë¤ÎÍøÍѼÔÍͤΤ¿¤á¤Ë¡¢ Åö¥µ¥¤¥È¤ò¤´ÍøÍѤ·¤Æ¤¤¤¿¤À¤¯¤Ë¤¢¤¿¤Ã¤Æ¤Î½å¼é»ö¹à¤ä°ìÄê¤Î¥ë¡¼¥ë¤òÄê¤á¤Æ¤¤¤Þ¤¹¡£¡¡Åö¥µ¥¤¥È¤ÎÍøÍѼÔÍͤÏËÜÍøÍѵ¬Ìó¤ÎÆâÍÆ¤ò½½Ê¬¤ËÍý²ò¤·¡¢Ç¼ÆÀ¤ª¤è¤Ó¤´Î»¾µ¤Î¾å¡¢ ¤´ÍøÍѤ·¤Æ¤¤¤¿¤À¤¤Þ¤¹¡£
Âè2¾ò¡Ê¥¹¥¿¥Ê¥Ó¤ÎÍøÍѤ˺ݤ·¤Æ¤ÎÃí°Õ»ö¹à¡Ë
Åö¥µ¥¤¥È¤Ï¡¢Åö¥µ¥¤¥È¤Î±ÜÍ÷¤Ê¤É¤ÎÍøÍѤò¸¶Â§¼«Í³¤Ë¹Ô¤Ã¤Æ¤¤¤¿¤À¤¤Þ¤¹¡£¡¡Åö¥µ¥¤¥È¤òÍøÍѤ·¤Æ¤¤¤¿¤À¤¯¾å¤Ç¡¢Ëܵ¬Ìó¤ÎÆâÍÆ¤ò½½Ê¬¤Ë½å¼é ¤·¤Æ¤¤¤¿¤À¤¯É¬Íפ¬¤¢¤ê¤Þ¤¹¡£¡¡Åö¥µ¥¤¥ÈÍøÍѼÔÍͤÎÅö¥µ¥¤¥È¾å¤ÇȯÀ¸¤·¤¿¥È¥é¥Ö¥ë¤ä »³²¤Ë´Ø¤·¤Æ¤Ï¡¢Åö¼Ò¤Î¸Î°Õ¡¢²á¼ºÅù¤ò½ü¤¡¢°ìÀÚÀÕǤ¤òÉ餤¤«¤Í¤ë¤³¤È¤ò»öÁ°¤Ë ¤´Î»¾µ¤¤¤¿¤À¤¤Þ¤¹¡£
Âè3¾ò¡Ê¥¹¥¿¥Ê¥Ó¤ÎÆâÍÆ¡Ë
Åö¥µ¥¤¥È¤Ï¡¢Åö¥µ¥¤¥È¤Î¹¹ð¤¹¤ë¾ðÊó¤ò¥¤¥ó¥¿¡¼¥Í¥Ã¥È¥æ¡¼¥¶¡¼¤¬ÌµÎÁ¤Ç±ÜÍ÷ ¤¹¤ë¤³¤È¤¬¤Ç¤¤ë¾ðÊó¥µ¥¤¥È¤Ç¤¹¡£¡¡¼ç¤¿¤ë¹¹ð¤ÏÉÔÆ°»º¾ðÊó¤È¤·¡¢ÉÔÆ°»º¾ðÊó¤ò¼ç¤Ë ±ÜÍ÷¤Ç¤¤ë¤è¤¦¤Ê¥·¥¹¥Æ¥à¤ò¹½ÃÛ¤·¤Æ¤¤¤Þ¤¹¡£
Âè4¾ò¡Ê¥¹¥¿¥Ê¥ÓÍøÍÑ¼Ô¤ÎÆÏ½Ð»ö¹à¡Ë
Åö¥µ¥¤¥È¤Î¤´ÍøÍѤ˺ݤ·¤Æ¡¢°ìÄê¤Î¸Ä¿Í¾ðÊó¤òÆÏ½Ð¤¤¤¿¤À¤¯¾ì¹ç¤¬¤¢¤ê¤Þ¤¹¡£
Åö¥µ¥¤¥È¤Ë¥³¥ó¥¿¥¯¥È¤·¤Æ¤¤¤¿¤À¤¯ºÝ¤Ë¡¢ÍøÍѼÔÍͤλá̾¡¢½»½ê¡¢¶Ð̳Àè¡¢ Ï¢ÍíÀèÅù¤òÅö¥µ¥¤¥È¾å¤Î¥á¡¼¥ë¥Õ¥©¡¼¥à¤«¤éÆÏ½Ð¤·¤Æ¤¤¤¿¤À¤¤Þ¤¹¡£
Âè5¾ò¡Ê¸Ä¿Í¾ðÊó¤Î´ÉÍý¡Ë
Åö¥µ¥¤¥È¾å¤Ç¡¢Á°4¾ò¤Î»ö¹à¤ÎºÝ¤ËÆþ¼ê¤·¤¿ÍøÍѼÔÍͤθĿ;ðÊó¤Ï¡¢¸Ä¿Í¾ðÊóÊݸîË¡ ¤Ë´ð¤Å¤Å¬Àµ¤Ë´ÉÍý¤¤¤¿¤·¤Þ¤¹¡£
Âè6¾ò¡Ê¥¹¥¿¥Ê¥ÓÍøÍѼԤζػ߹԰١Ë
Åö¥µ¥¤¥È¤ò¤´ÍøÍѤ·¤Æ¤¤¤¿¤À¤¯¤ËºÝ¤·¤Æ¡¢ÍøÍѼÔÍͤ˲¼µ¤Î¹Ô°Ù¤ò°ìÀڶػߤ·¤Æ¤¤¤Þ¤¹¡£
(1) Åö¥µ¥¤¥È¤Ë·ÇºÜ¤·¤Æ¤¤¤ë¾ðÊó¤ò̵ÃǤǻÈÍÑ¡¢Ê£À½¡¢¹¹ð¡¢Âè»°¼Ô¤ËÄ󶡤¹¤ë¹Ô°Ù
(2) Åö¥µ¥¤¥È¤ËÂФ·¤Æ¤Î²áÅÙ¤ÊÈðëîÃæ½ý¹Ô°Ù
(3) Åö¥µ¥¤¥È¤ËÂФ·¤Æµõµ¶¤Î¸Ä¿Í¾ðÊó¤òÄ󶡤¹¤ë¹Ô°Ù
(4) Åö¥µ¥¤¥È¤Î±Ä¶È³èư¤ò˸¤²¤ë¹Ô°Ù
(5) Åö¥µ¥¤¥È¤ËÂФ·¤ÆÍ³²¤Ê¥³¥ó¥Ô¥å¡¼¥¿¡¼¥×¥í¥°¥é¥àÅù¤òÁ÷¿®¤Þ¤¿¤Ï½ñ¤¹þ¤à¹Ô°Ù
(6) Ë¡Îá¼ã¤·¤¯¤Ï¸ø½øÎɯ¤ËÈ¿¤¹¤ë¹Ô°Ù
(7) ¤½¤Î¾¡¢Åö¥µ¥¤¥È¤Î±¿±Ä¾å¡¢ÉÔŬÀÚ¤ÈȽÃǤµ¤ì¤ë¹Ô°Ù
Âè7¾ò¡Ê²ñ°÷ÅÐÏ¿¡Ë
Åö¥µ¥¤¥È¤Ï¡¢Åö¥µ¥¤¥È¤ÎÍøÍѼÔÍͤËÂФ·¤Æ°ìÄê¤Î¸Ä¿Í¾ðÊó¤òÄ󶡤·¤Æ¤¤¤¿¤À¤¤¤¿¾å¤Ç¡¢²ñ°÷ÅÐÏ¿¤ò¹Ô¤¦¤³¤È¤¬²Äǽ¤Ç¤¹¡£²ñ°÷ÅÐÏ¿¤Ï¡¢ÊÌÅÓ²ñ°÷µ¬Ìó¤Ë´ð¤Å¤¡¢»ØÄê¥Õ¥©¡¼¥à¤Ç¹Ô¤Ã¤Æ¤¤¤¿¤À¤¤Þ¤¹¡£ ²ñ°÷ÅÐÏ¿»þ¤ËÆþ¼ê¤·¤¿¸Ä¿Í¾ðÊó¤Ï¡¢¸Ä¿Í¾ðÊóÊݸîË¡¤Ë´ð¤Å¤Å¬Àµ¤Ë´ÉÍý¤¤¤¿¤·¤Þ¤¹¡£
Âè8¾ò¡ÊID¤ª¤è¤Ó¥Ñ¥¹¥ï¡¼¥É¤Îȯ¹Ô¡Ë
Åö¥µ¥¤¥È¤Ï¡¢Åö¥µ¥¤¥È¤Î²ñ°÷ÍøÍѼÔÍͤËID¡¢¥Ñ¥¹¥ï¡¼¥É ¤ÎÄ󶡤ò¹Ô¤Ã¤Æ¤ª¤ê¤Þ¤¹¡£ID¥Ñ¥¹¥ï¡¼¥É¤Îȯ¹Ô¤Ï¡¢²ñ°÷ÅÐÏ¿»þ¤Ë¹Ô¤¤¤Þ¤¹¡£ ²ñ°÷¤Ï¡¢ËÜ¥µ¡¼¥Ó¥¹¤ÎÍøÍѤΤ¿¤á¤ËÊÀ¼Ò¤¬ÉÕÍ¿¤¹¤ë¥Ñ¥¹¥ï¡¼¥É¤Ë¤Ä¤¤¤Æ¡¢¼«¸Ê¤ÎÀÕǤ¤Ë¤ª¤¤¤Æ´ÉÍý¤¹¤ë¤â¤Î¤È¤·¡¢ÊÀ¼Ò¤Ï²ñ°÷¤Î¥Ñ¥¹¥ï¡¼¥É¤¬Âè»°¼Ô¤Ë»ÈÍѤµ¤ì¤¿¤³¤È¤Ë¤è¤Ã¤Æ²ñ°÷¤¬Èï¤ë»³²¤Ë¤Ä¤¤¤Æ¡¢°ìÀÚ¤ÎÀÕǤ¤òÉé¤ï¤Ê¤¤¤â¤Î¤È¤·¤Þ¤¹¡£
Âè9¾ò¡Ê¥¹¥¿¥Ê¥Ó¤Î°ì»þŪ¤ÊÃæÃǤª¤è¤ÓÃæ»ß¡Ë
Åö¥µ¥¤¥È¤Ï¡¢Ì±´Ö¤ÎÉÔÆ°»º²ñ¼Ò¡Ê°Ê²¼¡¢Åö¼Ò¡Ë¤¬±¿±Ä¤·¤Æ¤¤¤ë¹¹ð¥µ¥¤¥È¤Ç¤¹¡£¡¡Åö¼Ò¤¬²¿¤é¤«¤Î·Á¤Ç±Ä¶È¤¬ÃæÃǤª¤è¤ÓÃæ»ß¤Ë¤Ê¤Ã¤¿¾ì¹ç¤Ë¡¢Åö¥µ¥¤¥È¤Î±Ä¶È¤¬ °ì»þŪ¤ËÃæÃǤª¤è¤ÓÃæ»ß¤Ë¤Ê¤ë¥±¡¼¥¹¤¬¤¢¤ë¤³¤È¤òÅö¥µ¥¤¥È¤ÎÍøÍѼÔÍÍ¤Ë¤Ï »öÁ°¤Ë¤´¾µÂú¤·¤Æ¤¤¤¿¤À¤¤Þ¤¹¡£
Âè10¾ò¡Ê¥¹¥¿¥Ê¥Ó¤Î½ªÎ»¡Ë
Åö¼Ò¤Ï¡¢°ìÄê¤Î´ü´Ö¤òÀߤ±¤ÆÅö¥µ¥¤¥È¤¬½ªÎ»¤¹¤ë»Ý¤ò¹ðÃΤ·¡¢Åö¥µ¥¤¥È¤Î¥µ¡¼¥Ó¥¹¤ò ½ªÎ»¤¹¤ë¤³¤È¤¬¤Ç¤¤Þ¤¹¡£¡¡Åö¥µ¥¤¥È¤ÎÍøÍѼÔÍͤˤϡ¢Åö¥µ¥¤¥È¤Î¤´»ÈÍѤ˺ݤ·¤Æ¡¢Ëܾò¤ÎÆâÍÆ¤ò»öÁ°¤Ë¤´¾µÂú¤·¤Æ¤¤¤¿¤À¤¤Þ¤¹¡£
Âè11¾ò¡ÊÀÕǤÈϰϡË
Åö¼Ò¤Ï¡¢Åö¥µ¥¤¥È¤Ë·ÇºÜ¤µ¤ì¤Æ¤¤¤ë¾ðÊó¤Ë´Ø¤·¤Æ¡¢¤¤¤«¤Ê¤ëÊݾڤâ¹Ô¤¤¤Þ¤»¤ó¡£
Åö¥µ¥¤¥È¤Ë·ÇºÜ¤µ¤ì¤Æ¤¤¤ë¾ðÊó¤Ë´Ø¤·¡¢¸í¤Ã¤¿¾ðÊó¤ä¸Å¤¤¾ðÊ󤬤¢¤ë¤³¤È¤òÁ°Äó¤Ë ÍøÍѼÔÍͤËÅö¥µ¥¤¥È¤Î¥µ¡¼¥Ó¥¹¤ò¤´ÍøÍѤ·¤Æ¤¤¤¿¤À¤¤Þ¤¹¡£¡¡¾°¡¢Åö¼Ò°Ê³°¤Î²ñ°÷¤¬ ·ÇºÜ¤·¤Æ¤¤¤ë¾ðÊó¤ò²¼¤Ë¡¢ÍøÍѼÔÍͤ¬²¿¤é¤«¤Î»³²¤òÈï¤Ã¤¿¾ì¹ç¤Ë¤ÏÅö¼Ò¤Ï °ìÀÚ¤ÎÀÕǤ¤òÉé¤ï¤Ê¤¤¤â¤Î¤È¤·¡¢ÍøÍѼÔÍͤϤ³¤ì¤ËƱ°Õ¤·¤¿¤â¤Î¤ÈÃפ·¤Þ¤¹¡£
Âè12¾ò¡Ê´É³íºÛȽ½ê¡Ë
Åö¥µ¥¤¥È¤Ë´Ø¤¹¤ëʶÁè¤Ï¡¢ÂçºåÃÏÊýºÛȽ½ê¤òÂè°ì¿³¤ÎÀì°Ū¹ç°Õ´É³íºÛȽ½ê¤È¤·¤Æ½èÍý¤¹¤ë¤â¤Î¤È¤¤¤¿¤·¤Þ¤¹¡£
Âè13¾ò¡ÊÌä¹ç¤»Àè¡Ë
Åö¥µ¥¤¥È¤ÎÌ䤤¹ç¤ï¤»Àè¤Ï¡¢²¼µ¤Î¤È¤ª¤ê¤È¤¤¤¿¤·¤Þ¤¹¡£
³ô¼°²ñ¼Ò¥¹¥¿¥ó¥À¡¼¥É¥Ñ¡¼¥È¥Ê¡¼¥º
¥¹¥¿NAVI±¿±ÄÁë¸ý
¤³¤Îʪ·ï¤ò¸«¤¿¿Í¤Ï¤³¤ó¤Êʪ·ï¤â¸«¤Æ¤¤¤Þ¤¹¡£